Biến tần Frenic-Mega là dòng series chuyên tải nặng có công suất lên đến 630kW, sử dụng phù hợp cho tất cả các ứng dụng điều khiển động cơ hiện nay.
1. Tổng quan
Thông số biến tần Frenic-Mega

1.1 Thông số biến tần Frenic-Mega
Thông số biến tần Frenic-Mega
- Điện áp đầu vào:
- 3 pha 200-240V 50/60Hz
- 3 pha 380-480V 50/60Hz
- Công suất tương ứng:
- 0.2 – 630kW
- Dải tần số: 25 – 500Hz
- Dòng điện:
- 3 – 415A (200-240V)
- 1.5 – 1370A (380-480V)
- Với hệ số quá tải:
- 120% trong 60s
- 150% trong 60s
- 200% trong 5s
- Tích hợp bộ hãm tốc đến 22kW
- Tích hợp điện trở hãm tới 7,5kW
- Áp dụng nhiều phương pháp điều khiển:
- Điều khiển vector PG
- Điều khiển Vector không có cảm biến
- Điều khiển vector mô-men động
- Điều khiển V/f
- Cải thiện hiệu suất của các dòng điện đáp ứng và tốc độ đáp ứng (Điều khiển vector)
- Cải thiện độ bền trong hoạt động quá tải
- Bàn phím với một đầu nối USB (Tùy chọn)
- Sử dụng các bộ phận có tuổi thọ lâu hơn (Thiết kế tuổi thọ 10 năm)
- Nhiều chức năng khác nhau điều chỉnh 1 dải rộng các ứng dụng
- Mở rộng công suất trong mạch tích hợp điều khiển thắng, với dãy công suất 22kW – 110kW
- Dãy công suất rộng có thể đáp ứng hầu hết các ứng dụng trong công nghiệp
1.2 Ứng dụng của biến tần Fuji Frenic-Mega
Thông số biến tần Frenic-Mega
- Biến tần Fuji Frenic-Mega chuyên dùng cho các ứng dụng như:
Loại tải thường: Quạt, bơm, HVAC
Loại tải nặng: Cẩu trục và các máy nâng hạ, băng chuyền, máy nén khí, máy đùn ép, máy cuộn, máy công cụ,…
2. Sơ đồ điều khiển và cài đặt các thông số biến tần Fuji Frenic-Mega
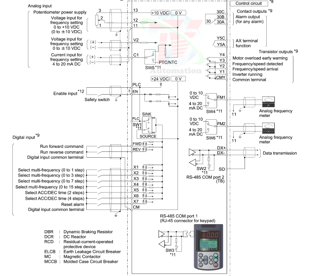
2.1 Sơ đồ điều khiển
Thông số biến tần Frenic-Mega

- 9 đầu vào chức năng: X1 —> X7, FWD, REV
- 3 cổng đầu vào analog: 12, C1, V2
- 2 cổng đầu ra analog: FM1, FM2
- 2 relay output
- Hỗ trợ truyền thông Modbus RS-485
- Và nhiều chân chức năng khác
2.2 Trả về mặc định nhà máy
Thông số biến tần Frenic-Mega
Pr. | Explanation | Setting Range | Factory |
H03 | Data Initialization Khởi tạo dữ liệu Reset biến tần | 0: Tắt khởi tạo 1: Khởi tạo tất cả tham số về mặc định nhà máy 2: Khởi tạo tham số động cơ 1 3: Khởi tạo tham số động cơ 2 4: Khởi tạo tham số động cơ 3 5: Khởi tạo tham số động cơ 4 | 0 |
F00 | Data Protection Bảo vệ dữ liệu | 0: Tắt cả bảo vệ dữ liệu và tham chiếu kỹ thuật số 1: Bật bảo vệ dữ liệu và tắt tham chiếu kỹ thuật số 2: Tắt bảo vệ dữ liệu và bật tham chiếu kỹ thuật số 3: Kích hoạt cả bảo vệ dữ liệu và tham chiếu kỹ thuật số | 0 |
2.3 Thông số biến tần Fuji Frenic-Mega cơ bản (1)
Thông số biến tần Frenic-Mega
F01 | Frequency Command 1 Lệnh tần số 1 | 0: Phím UP/DOWN trên bàn phím 1: Điện áp đầu vào cực [12] ( -10 to +10 VDC ) 2: Dòng điện đầu vào tới cực [C1] ( 4 to 20mA ) 3: Cho phép tổng điện áp và dòng điện đầu vào cực [12] và [C1] 5: Điện áp đầu vào cực [V2] ( -10 to +10 VDC ) 7: Lệnh đầu cuối điều khiển UP/DOWN 8: Phím UP/DOWN trên bàn phím
11: Thẻ giao diện đầu vào kỹ thuật số (tùy chọn) 12: Chuỗi xung đầu vào | 0 |
F02 | Operation Method Phương thức hoạt động | 0: Bàn phím 1: Lệnh chạy ngoài FWD hoặc REV 2: Bàn phím (chạy thuận) 3: Bàn phím (chạy nghịch) | 0 |
F03 | Maximum Frequency 1 Tần số 1 lớn nhất | 225.0 to 500.0 Hz | 60.0 |
F04 | Base Frequency 1 Tần số 1 cơ bản | 25.0 to 500.0 Hz | 60.0 |
2.4 Thông số biến tần Fuji Frenic-Mega cơ bản (2)
Thông số biến tần Frenic-Mega
F07 | Acceleration Time 1 Thời gian tăng tốc 1 | 0.00 to 6000s
| Model |
F08 | Deceleration Time 1 Thời gian giảm tốc 1 | 0.00 to 6000 s
| Model |
F15 | Frequency Limiter (High) Giới hạn tần số cao | 0.0 to 500.0 Hz | 70.0 |
F16 | Frequency Limiter (Low) Giới hạn tần số thấp | 0.0 to 500.0 Hz | 0.0 |
2.5 Thông số biến tần Fuji Frenic-Mega cơ bản(3)
Thông số biến tần Frenic-Mega
F23 | Starting Frequency 1 Tần số bắt đầu 1 | 0.1 to 60.0Hz | 0.5 |
H06 | Cooling Fan ON/OFF Control Điều khiển ON/OFF quạt làm mát | 0: Vô hiệu hóa ( Quạt luôn hoạt động ) 1: Cho phép ( có thể điều khiển bật tắt ) | 0 |
H11 | Deceleration Mode Chế độ dừng | 0: Bình thường giảm tốc 1: Dừng tự do | 0 |
H08 | Rotational direction limitation Giới hạn hướng chạy | 0: Vô hiệu hóa 1: Cấm xoay ngược 2: Cấm quay thuận | 0 |
2.6 Thông số biến tần Fuji Frenic-Mega cơ bản(4)
Thông số biến tần Frenic-Mega
H97 | Clear Alarm Data Xóa dữ liệu cảnh báo | 0: Vô hiệu hóa 1: Xóa dữ liệu cảnh báo | 0 |
C20 | Jogging Frequency Tần số JOG | 0.00 to 500.00 Hz | 0.00 |
F25 | Stop Frequency Tần số dừng | 0.0 to 60.0 Hz | 0.2 |
P04 | Auto-tuning Tự động điều chỉnh | 0: Vô hiệu hóa 1: Điều chỉnh khi động cơ dừng
2: Điều chỉnh trong khi động cơ đang quay dưới sự điều khiển V/f
3: Điều chỉnh khi động cơ quay dưới điều khiển vector ( Có sẵn khi điều khiển véc tơ được kích hoạt )
| 0 |
- Và còn nhiều tham số khác chúng tôi không cập nhật lên đây. Nếu các bạn không xử lý được hãy liên hệ với chúng tôi để được hỗ trợ và xử lý một cách nhanh nhất.
3. Bảng mã lỗi biến tần Fuji Frenic-Mega (1)
Thông số biến tần Frenic-Mega
Mã lỗi | Loại lỗi | Nguyên nhân | Khắc phục |
OC1 | Quá dòng tức thời trong thời gian tăng tốc |
|
|
OC2 | Quá dòng tức thời trong thời gian giảm tốc |
|
|
OC3 | Quá dòng tức thời khi tốc độ không đổi |
|
|
3.1 Bảng mã lỗi biến tần Fuji Frenic-Mega (2)
Thông số biến tần Frenic-Mega
Mã lỗi | Loại lỗi | Nguyên nhân | Khắc phục |
OU1 | Quá dòng điện áp trong thời gian tăng tốc |
| |
OU2 | Quá dòng điện áp trong thời gian giảm tốc |
|
|
OU3 | Quá dòng điện áp khi tốc độ không đổi |
|
3.2 Bảng mã lỗi biến tần Fuji Frenic-Mega (3)
Thông số biến tần Frenic-Mega
OH1 | Bảo vệ quá nhiệt biến tần |
|
|
OH2 | Báo lỗi đầu vào chân chức năng |
| |
| OH3 | Biến tần quá nóng |
|
|
| Er1 | Lỗi bộ nhớ |
|
3.3 Bảng mã lỗi biến tần Fuji Frenic-Mega (4)
Thông số biến tần Frenic-Mega
OPL | Bảo vệ mất pha đầu ra |
| |
Lin | Bảo vệ mất pha đầu vào |
|
|
OLU | Bảo vệ quá tải |
|
|
LU | Bảo vệ dưới điện áp |
|
|
- Và còn nhiều lỗi khác chúng tôi không cập nhật lên đây. Nếu các bạn không xử lý được hãy liên hệ với chúng tôi để được hỗ trợ và xử lý một cách nhanh nhất.
4. Liên hệ
Thông số biến tần Frenic-Mega
Liên hệ với chúng tôi để được hướng dẫn cài đặt thông số biến tần Fuji Frenic-Mega miễn phí và nhanh nhất.
Nếu bạn đang có nhu cầu cần mua hay báo giá thiết bị tự động hóa hoặc cần tư vấn thêm thì hãy liên hệ ngay với chúng tôi để được hỗ trợ một cách tận tâm, nhanh chóng và hiệu quả nhé!
CÔNG TY CỔ PHẦN GIẢI PHÁP TỰ ĐỘNG HÓA TRÍ VIỆT
- Địa Chỉ Hồ Chí Minh: 36/6 đường số 4, khu phố 5, phường An Lạc A, quận Bình Tân, thành phố Hồ Chí Minh.
- Địa Chỉ Hà Nội: 41/M2, KĐT mới Yên Hòa, phường Yên Hòa, quận Cầu Giấy, thành phố Hà Nội
- DĐ: 0984868617
- Email: trivietautomation.info@gmail.com
- MST: 0316876097
- Website: www.triviettech.com.vn – www.tudonghoatriviet.com
- Giờ làm việc: T2 – CN / 7:30 AM – 5:00 PM






















